【長期優良住宅】 ソーラーエコタウン第二楽田
1号地

【外観】
繰り返す震度7の巨大地震にも耐える「テクノストラクチャーEX」工法を採用し、安心・安全の耐震性能を備えた住まい。無駄のないシンプルなデザインに、人気の塗り調仕上げを採用した外観。マットな質感のブラックが全体を引き締め、落ち着いた雰囲気と高級感を演出します。
【LDK+畳コーナー】
17.8帖の広々としたLDKには、Rの垂れ壁がおしゃれなリビングと繋がる4帖の畳コーナーを採用。
お子様のお昼寝・遊び場に最適なのはもちろんのこと、趣味を楽しむリラックススペースとしても、多様な用途で使用できるスペースです。
【LDK】
ワイドな窓からは、やわらかな陽の光がたっぷりと差し込み、リビング全体を明るく包み込みます。時間とともに移ろう自然光が心地よく、家族が集う空間にぬくもりと開放感をプラスします。
【LDK】
明るくナチュラルなテイストのインテリアが、空間にやさしいぬくもりと心地よい安らぎをプラス。細部までこだわった個性的なデザインが、まるで注文住宅のような満足感と上質な暮らしを叶えます。
【主寝室】
8帖の主寝室は、ダブルベッドを置いてもゆとりある広さ。主寝室から繋がる屋根付きのバルコニーでは、天気を気にせず洗濯物を干すことができて便利です。
【主寝室 ウォークインクローゼット】
主寝室には3帖のWICを採用。衣類や季節物はもちろん、大きなキャリーケースや寝具なども収納できます。十分な収納力で、常に整った空間を維持できます。
【洋室】
6.8帖の洋室を2部屋完備、子ども部屋としてはもちろん、在宅ワークや趣味部屋としてなど、多目的に使用できる空間に。
【納戸】
収納力抜群の2帖の納戸は、普段使わない家電や趣味の道具、日用品のストックなど、さまざまなものを整理できる頼もしい空間。生活にゆとりを生む小さな書斎や作業スペースとしての活用も可能です。
【玄関ホール】
玄関ホールに手洗い用の洗面台を設けることで、帰宅後すぐに手や顔を清潔にでき、家の中をいつも清潔に保てます。家族や来客にとっても安心の衛生環境です。
【子育てグリーン住宅支援事業】
子育て世帯や若者夫婦世帯を対象に、長期優良住宅80万円の補助が出ます。
【大垣住まいるサポート事業】
「子育て世代等住宅取得支援事業利子補給金」大垣市内に新築住宅を取得し、一定条件を満たす子育て世代の人を対象に、利子支払額を3年間で最大30万円助成されます。
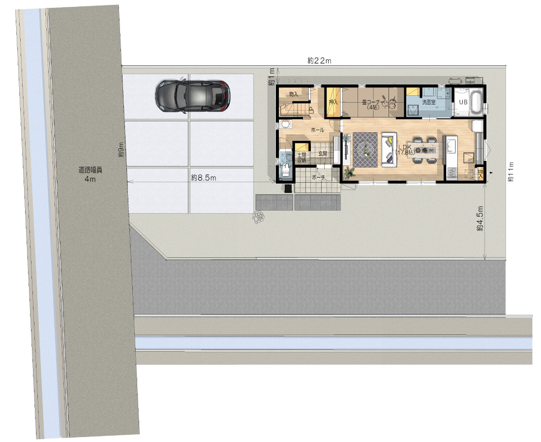
間取り 3LDK+畳コーナー+WIC+納戸+土間収納
土地面積 239.74㎡(72.52坪)
建物面積 120.06㎡(36.31坪)
販売価格 3,495万円(税込)
  • 仲介手数料無料、外構一式無料です。
この物件を見学する

間取りFLOOR PLAN

配置図

1F

2F

VRで暮らしを体感

VR
この物件を見学する

その他の区画

左右にスライドして見る
号地
2号地
販売価格 3,395万円
(税込)
土地面積 312.17㎡(94.43坪)
建物面積 120.06㎡(36.31坪)
間取り 3LDK+畳コーナー+WIC+書斎コーナー+納戸

スペース
土間収納 ×
詳細・
お問合せ
詳しく見る
MENU
トップページへ